Overview
- 3-room
- 2
- 0
- 149 square meters
- 2026
Description
ACT 16
🏡Three-room apartment in a modern residential building with a luxurious facade!
📍Location: a stone's throw from the Business Park metro station, Kaufland and Fantastico stores, and near the Bells
📐 The translation of "Основни характеристики:" from Bulgarian to English is "Main Characteristics:".
-
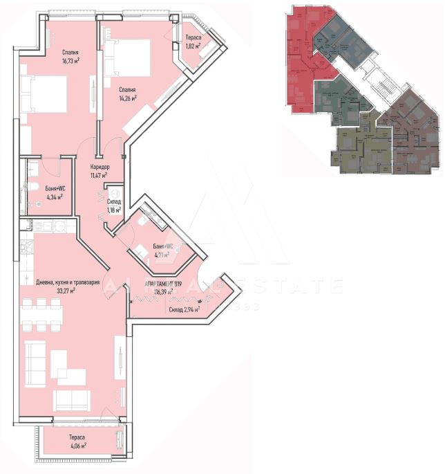
Total area: 149.01 sq. m.,
-
Built-up area: 116.39 sq. m. dwelling
-
Common areas: 32.62 sq.m.
-
Floor: 6 from 10
-
Exhibit: US
🏢 The translation of "Разпределение:" from Bulgarian to English is "Distribution:". The colon indicates that what follows is likely a list or further details related to distribution.
-
Two bedrooms
-
Two bathrooms with a toilet
-
Spacious daytime with a kitchenette.
-
Corridor
-
Two terraces
-
Two warehouses
🔥 Heating:
-
TPP
🌳 Facilities and environment:
✔ Spacious apartments with optimal layouts
✔ Gated community with 24-hour physical security, video surveillance, and controlled access.
✔ Professional management without hidden fees
✔ Luxurious facade and modern architecture, executed with high-quality materials and finishing works
✔ Quick access to public transport, schools, kindergartens and shops, Vitosha and Kambanite area
🚗 Additional:
✔ Option to purchase parking space (at a separate price)
💰 Ideal choice for a new home or investment
💰 A property that doesn't just offer square meters, but creates a feeling of home - a place where you will feel truly good
With an excellent location and a variety of apartments, the complex is built according to high standard, with:
-
Suspended ventilated facade with stone wool;
-
PVC windows Deceuninck, five-chamber with triple glazing;
-
ORONA elevators;
-
Gasification and energy certificate class B;
-
Underground garages, green spaces and professional maintenance.
📲Contact us for availability and detailed project information!
📌 Offer No. EA20176
Details
-
Offer ID 20176
-
Price €327,822
-
Square 149 square meters
-
Bedrooms 2
-
Rooms 3
-
Bath 0
-
Year of construction 2026
-
Property type 3-room
-
Offer type Sales
-
The translation of "Етаж" from Bulgarian to English is "Floor." 6
-
Floors 10
-
The Bulgarian word "Обзавеждане" translates to "Furnishing" or "Equipping" in English. It generally refers to the process of providing a space with furniture and other items necessary for its use. Unfurnished
-
Type of construction Brick
-
Price per sq.m. 2200
-
Heating TPP
-
New construction Yes
-
Balconies (qty.) 2
-
Bathroom with toilet (qty.) 2
Approximate location
-
City: Sofia
-
Neighborhood: Mladost 4