Spacious three-room apartment near Business Park Sofia - entrance B, apt. 22

  • €338,606
Sofia, Mladost 4
Sales Free
Spacious three-room apartment near Business Park Sofia - entrance B, apt. 22
Sofia, Mladost 4
  • €338,606

Overview

Offer ID: 20169
  • 3-room
  • Property type
  • 2
  • Bedrooms
  • 147
  • 2026
  • Year of construction

Description

🏡Three-room apartment in a modern residential building with a luxurious facade!
📍Location: a step away from the Business Park metro station, Kaufland and Fantastico stores, and near the Bells
📐 Main characteristics:
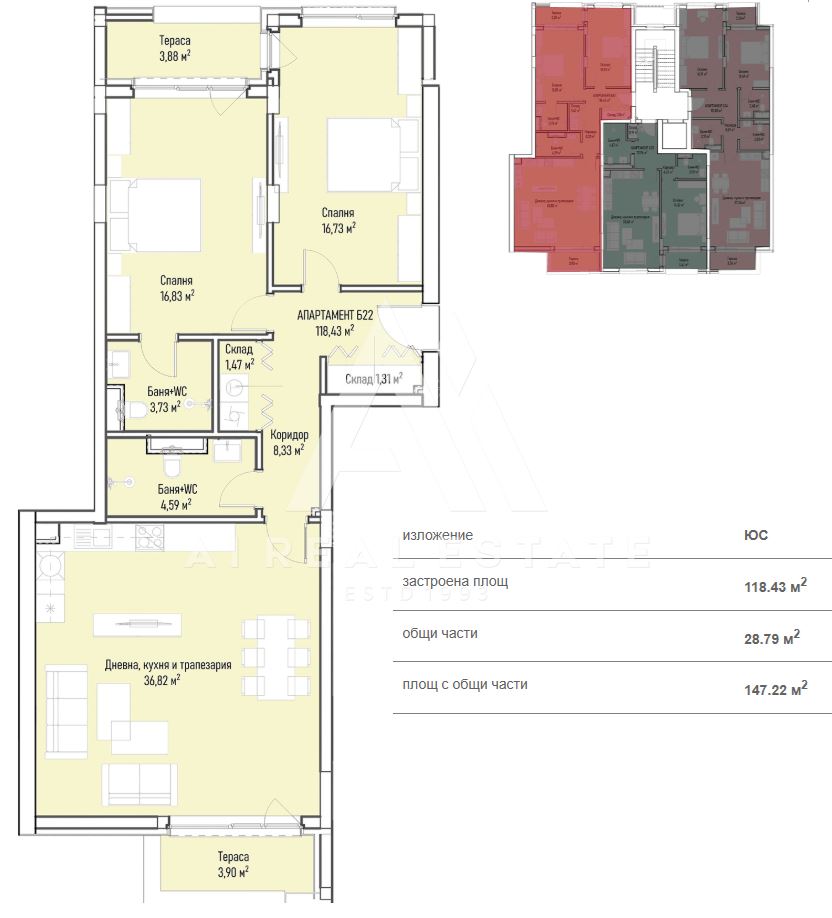
Total area: 147.22 sq.m.
Built-up area: 118.43 sq.m. dwelling
Common areas: 28.79 sq.m.
Floor: 8 of 10
Exposition: US
🏢 Distribution:
Two bedrooms
Two bathrooms with toilets
Spacious daytime with a kitchenette.
Corridor
Terrace
Two warehouses
🔥 Heating:
TPP
Comfort and environment:
✔ Spacious apartments with optimal layouts
✔ Gated community with 24-hour physical security, video surveillance, and controlled access.
✔ Professional management without hidden fees
✔ Luxurious facade and modern architecture, executed with high-quality materials and finishing works
✔ Quick access to public transport, schools, kindergartens and shops, Vitosha and Kambanite area
Additionally:
✔ Option to purchase a parking space (at a separate price)
Ideal choice for a new home or investment
💰 A property that doesn't just offer square meters, but creates a feeling of home - a place where you will feel truly good
   With an excellent location and a variety of apartments, the complex is built to a high standard, with:
Suspended ventilated facade with stone wool;
PVC windows Deceuninck, five-chamber with triple glazing;
ORONA elevators;
Gasification and energy certificate class B;
Underground garages, green spaces and professional maintenance.
🏗 The building has Act 15, it will be put into operation by April 2026.
📲Contact us for availability and detailed project information!
📌 Offer No. EA20169

Details

  • Offer ID: 20169
  • Price: €338,606
  • Quadrature: 147 m²
  • Bedrooms: 2
  • Rooms: 3
  • Year of construction: 2026
  • Property type: 3-room
  • Type of offer: Sales
  • Floor: 8
  • Floors: 10
  • Furnishings: Unfurnished
  • Type of construction: Brick
  • Price per square meter: 2300
  • Heating: TPP
  • New Construction: Yes
  • Balconies (pcs.): 1
  • Bathroom with toilet (no.): 2

Approximate location

  • City Sofia
  • District Mladost 4

Request a view

View type

Compare listings

Compare
Зорница Панайотова
  • Zornitsa Panayotova