Тристаен в Саут Вю Резиденс – Дружба1

  • €97,141
Плевен, Дружба 1
Продава Свободен
Тристаен в Саут Вю Резиденс – Дружба1
Плевен, Дружба 1
  • €97,141

Общ преглед

ID на оферта: 16003
  • 3-стаен
  • Тип имот
  • 2
  • Спални
  • 88
  • 2027
  • Година на строеж

Описание

🏢 Тристаен апартамент в новострояща се сграда Саут Вю Резиденс – ж.к. Дружба 1, Плевен
📍 Локация: ж.к. Дружба 1, зад ОУ „Климент Охридски“
🏢 Сграда: Саут Вю Резиденс – съвременен проект с удобна градска локация
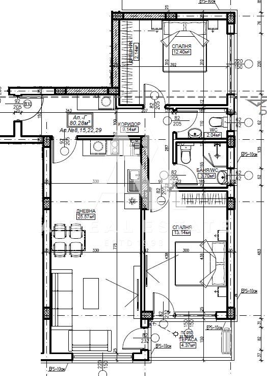
📐 Обща площ: 88.31 кв.м
🧱 Чиста площ: 80.28 кв.м
📦 Общи части: 8.03 кв.м
🏢 Етаж: 1 от 5
Предлагаме за продажба функционален тристаен апартамент в новостроящата се сграда Саут Вю Резиденс, разположена в тиха зона на ж.к. Дружба 1, непосредствено зад училище ОУ „Климент Охридски“.
✨ Разпределение:
Просторна дневна с кухненски кът
Две Спални
Баня с тоалетна и тоалетна
Тераса с достъп от дневна и спалня
📌 Приложен е чертеж с разпределението на жилището за по-добра визуализация.
🔥 Отопление: ТЕЦ и топла вода – гарантиран комфорт през зимата
🛒 Предимства на локацията:
В непосредствена близост до училище, магазини, детска градина и площадка
Спокойна жилищна среда с бърз достъп до градски транспорт и централната част на града
🏗️ Саут Вю Резиденс е проектирана с фокус върху комфорт, функционалност и качество на изпълнение, което я прави отличен избор както за първи дом, така и за инвестиция с дългосрочен потенциал.
📞 Свържете се с нас за повече информация, актуални наличности и планове.
🔑 ОФЕРТА № ЕА 16003

Детайли

  • ID на оферта: 16003
  • Цена: €97,141
  • Квадратура: 88 m²
  • Спални: 2
  • Стаи: 3
  • Година на строеж: 2027
  • Тип имот: 3-стаен
  • Вид оферта: Продава
  • Етаж: 1
  • Етажи: 5
  • Обзавеждане: Необзаведен
  • Вид строителство: Тухла
  • Цена кв.м.: 1100
  • Отопление: ТЕЦ
  • Ново строителство: Да
  • Балкони (бр.): 1
  • Тоалетни (бр.): 1
  • Баня с тоалетна (бр.): 1

Приблизителна локация

Отвори в Google Maps
  • Град Плевен
  • Квартал Дружба 1

Видео

360° Видео Тур

Заяви оглед

Тип оглед

Сравняване на списъци

Сравни
Ива Средкова
  • Ива Средкова