Двустаен апартамент в луксозен жилищен комплекс в Малинова долина вх.2 ап.1

  • €169,202
София, Малинова Долина
Продава
Двустаен апартамент в луксозен жилищен комплекс в Малинова долина вх.2 ап.1
София, Малинова Долина
  • €169,202

Общ преглед

ID на оферта: 20142
  • 2-стаен
  • Тип имот
  • 1
  • Спалня
  • 77
  • 2025
  • Година на строеж

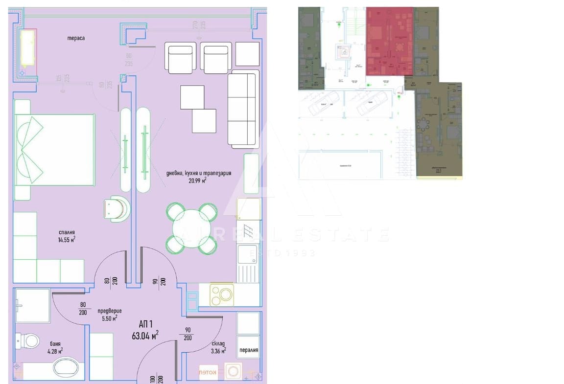
Описание

АКТ 16
🏡Двустаен апартамент в луксозен жилищен комплекс в Малинова долина !
📍Локация: разположен северно от Ring Mall и Ikea, в непосредствена близост до бул. Климент Охридски в красива зелена местност и уникална гледка към Витоша.
📐 Основни характеристики:
Обща площ: 76.91 кв.м.,
Застроена площ: 63.04 кв.м. жилище
Общи части:  13.87 кв.м.
Етаж: 1 от 7
Изложение: СИ
🏢 Разпределение:
Спалня
Баня с тоалетни
Дневна с кухненски бокс
Тераса
Склад
🔥 Отопление:
Газ  или Климатици
📍 Локация: на 15 мин с автомобил до центъра на София и на 3 мин от Ring Mall.
🌳 Удобства и среда:
✔ Просторни апартаменти с оптимални разпределения
✔ Вътрешен озеленен двор с детска площадка
✔ Комплекс от затворен тип с 24 часа физическа охрана, видеонаблюдение и контролиран достъп.
✔ Професионално управление без скрити такси
✔ Жилище сред природата, далеч от шумните булеварди и интензивната градска среда
✔ Бърз достъп до градски транспорт, училища, детски градини и магазини
🚗 Допълнително:
✔ Възможност за покупка на гараж и/или паркомясто (на отделна цена)
💰 Идеален избор за нов дом или инвестиция
💰 Имот, който не просто предлага квадратни метри, а създава усещане за дом – място, където ще се чувствате наистина добре
      С отлична локация и разнообразие от апартаменти, комплексът е изпълнен по висок стандарт, с:
Окачена вентилируема фасада с каменна вата;
PVC дограма Deceuninck, петкамерна с троен стъклопакет;
Асансьори ORONA;
Газификация и енергиен сертификат клас В;
Подземни гаражи, озеленени пространства и професионална поддръжка.
🏗 Сградата е с Разрешение за ползване!
📲 Свържете се с нас за индивидуална оферта, наличности и подробности по проекта!
📌 Оферта № ЕА 20142

Детайли

  • ID на оферта: 20142
  • Цена: €169,202
  • Квадратура: 77 m²
  • Спалня: 1
  • Стаи: 2
  • Година на строеж: 2025
  • Тип имот: 2-стаен
  • Вид оферта: Продава
  • Етаж: 1
  • Етажи: 7
  • Обзавеждане: Необзаведен
  • Вид строителство: Тухла
  • Цена кв.м.: 2200
  • Отопление: ТЕЦ
  • Ново строителство: Да
  • Балкони (бр.): 1
  • Баня с тоалетна (бр.): 1

Приблизителна локация

  • Град София
  • Квартал Малинова Долина

Заяви оглед

Тип оглед

Сравняване на списъци

Сравни
Зорница Панайотова
  • Зорница Панайотова